Bradlee Medical Office Building
3541/3543 W. Braddock Road
Alexandria, VA  22304

 

COMING SOON: Suite 110 - Fully Furnished and Equipped Medical Office starting at $3900/month.
SHARED MEDICAL SUITES: We currently have availability in our Shared Medical program. Prices start at $320/day, minimum 1 day/week for 1 year.

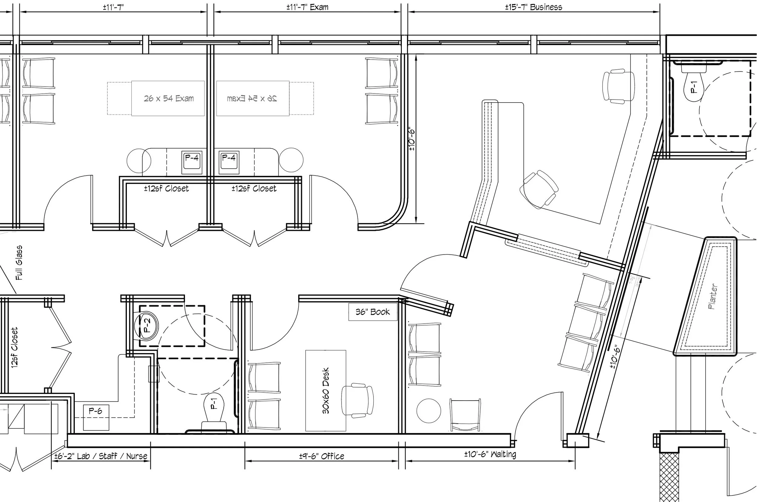
Suite 110 - First Floor Location - AvaILABLE May 2026

1000 SF
Starting at $3900/month fully equipped and furnished, $3750/month without equipment and furnishings.
Pictures are actual equipment and furnishings. Each Suite has:

  • 2 Exam Rooms

  • Waiting Room

  • Reception Area

  • Consultation Room

  • Lab/Kitchenette

  • ADA Restroom

  • Locked Storage

The building is just steps away from the Bradlee Shopping Center.  Nearby businesses include:

  • Safeway Megastore

  • Fresh Market

  • 2 Banks

  • Michaels

  • T-Mobile

  • Walgreens

  • Several restaurants

  • Fast Food establishments

  • Starbucks

  • Barber Shop

  • Beauty Parlor

  • Nail Salon

  • StretchLAB

  • Shoe repair and more

Call for information today!

Landmark Towers
101 S. Whiting Street, Alexandria, VA  22304
(703) 751-5100

Call us 24/7 or stop by for a tour any day, including weekends and holidays,
between 9 AM and 6 PM.  Appointments preferred for commercial viewings.  Brokers welcomed!